Magazzino in Asta a Genova Via Ursone da Sestri 4,6,8 R
Italiano
17.719 €

Magazzino in Asta a Genova Via Ursone da Sestri 4,6,8 R

Magazzino in vendita • Genova (Sestri Ponente) - Via Ursone da Sestri
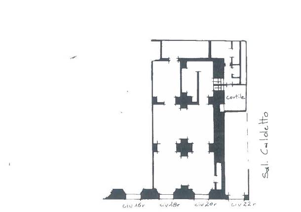
in Comune di Genova, Sestri Ponente, piena proprietà di un locale ad uso magazzino, posto al piano terra e contraddistinto dal civico 43r di Via Ursone da Sestri e dai civici 4r-6r-8r di Traversa degli Operai. via Ursone da Sestri 43r.
L'immobile viene venduto dal tribunale tramite asta giudiziaria e il prezzo indicato si riferisce all'offerta minima.
Per chi acquista come prima casa, sono previste agevolazioni.
Cerchi casa all'Asta ?
Ti sei già informato ?
Pensi che il mutuo al 100% sia solo una pubblicità ?
Astexte, la soluzione!
Cosa aspetti ?
HAI UNA CASA PIGNORATA ? POSSIAMO AIUTARTI !
CHIAMACI ALLO 0109841034
Caratteristiche principali
Codice
11/12/2025ursGE
Città
Genova (Sestri Ponente)
Categoria
Magazzino
Prezzo
17.719 €
Locali
1
Mq
56
Classe energetica
In fase di valutazione
Mappa
Via Ursone da Sestri , Genova (GE)
Richiedi informazioni
Invia
Condividi su
Cookie preference