Magazzino in Asta a Genova Via Livorno 14
Italiano
115.800 €

Magazzino in Asta a Genova Via Livorno 14

Magazzino in vendita • Genova (Albaro) - Via Livorno , 14
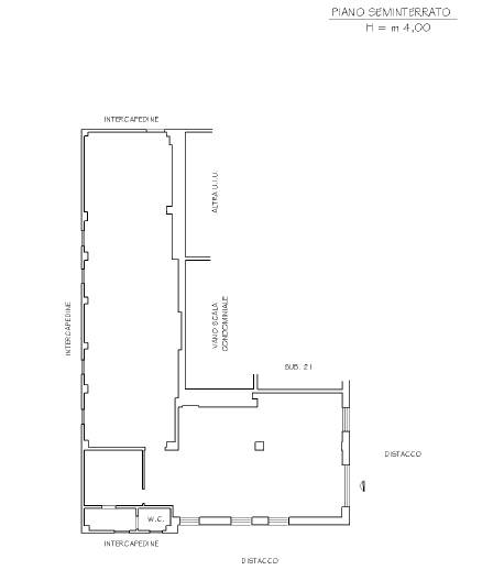
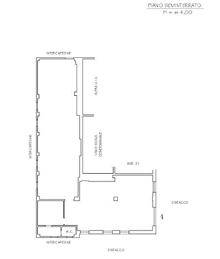
Lotto Unico formato da un magazzino ubicato a Genova (GE) - Via Livorno, civ. 14, posto al piano seminterrato;• distribuzione locali: l'immobile si sviluppa con una conformazione planimetrica costituita da due poligoni di forma rettangolare disposti ortogonalmente tra loro, due vani principali, un ripostiglio ed un servizio igienico.
L'immobile viene venduto dal tribunale tramite asta giudiziaria e il prezzo indicato si riferisce all'offerta minima.
Per chi acquista come prima casa, sono previste agevolazioni.
Cerchi casa all'Asta ?
Ti sei già informato ?
Pensi che il mutuo al 100% sia solo una pubblicità ?
Astexte, la soluzione!
Cosa aspetti ?
HAI UNA CASA PIGNORATA ? POSSIAMO AIUTARTI !
CHIAMACI ALLO 0109841034
Caratteristiche principali
Codice
14/11/2025magGE
Città
Genova (Albaro)
Categoria
Magazzino
Prezzo
115.800 €
Locali
1
Mq
163
Classe energetica
In fase di valutazione
Mappa
Via Livorno 14, Genova (GE)
Richiedi informazioni
Invia
Condividi su
Cookie preference